本文へスキップ

土地・戸建・マンションの売買・賃貸のご相談はエス・ケー株式会社へ

電話でのお問い合わせは0587-96-1185

〒480-0146 愛知県丹羽郡大口町余野六丁目15番地

物件詳細detail

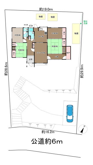
中古住宅:犬山市富岡片洞                21142

富岡前駅徒歩5分 眺望良好 5DK 駐車場1台 

物件写真

   
   
   
  

地形図

 

物件概要

価格 価格980万円 建ぺい率 60%
所在地 犬山市富岡片洞地内 容積率 200%
最寄駅 名鉄広見線富岡前駅徒歩5分
名鉄犬山線犬山駅徒歩23分
都市計画 市街化調整区域
土地面積 実測505.81u(153.00坪) 法令上の制限 都市計画法,景観計画田園集落ゾーン
砂防法,土砂災害警戒区域,がけ条例
宅地造成等工事規制区域
建物面積 100.88u(30.51坪) 現況 空き家 玉石積擁壁有
建物構造 木造瓦葺平家建 設備 電気・水道・プロパン・浄化槽
築年数 昭和44年4月新築 備考 現況渡し売主の契約不適合責任免責